防爆PLC控制箱在煤矿皮带集控系统中的应用
添加时间:2015-07-05    阅读次数:9368

1. 概述

胶带输送机是一种由电机驱动的连续运输设备,大多采用就地控制。而在胶带输送机的连续运行中,经常会出现跑偏、堆煤、打滑、撕裂等现象,实现胶带机集控与保护具有重要的意义。  

防爆PLC控制箱主要用于煤矿井下的皮带自动化控制与保护系统,采用西门子S7-1200系列PLC作为核心设备,具有较强的适用性、可扩展性、高可靠性和强大的通讯能力。其逻辑控制方式可通过软件的编程来实现,使复杂的控制逻辑变得简单易行。控制箱内部的输入和输出信号之间有可靠的隔离措施和本安电源,从而确保与各种类型传感器、执行器、各种设备电控回路的连接和匹配之间更加灵活、通用。

2.组成

胶带机集控及保护系统主要由环网交换机、防爆PLC控制箱(从站)、西门子S7-300主站、配套皮带保护传感器、上位机、集控软件等部分组成。

S7-300主站实现对井下所有防爆控制箱从站的管理,对所有井下数据进行汇总、整合后提供给上位机,对上位机进行控制的数据进行下发[1]。

防爆控制箱内置环网交换机,交换机使用光纤将所有从站的数据传输至地面环网交换机,实现与地面PLC主站的通讯[2]。

每条皮带配置一台防爆PLC箱,用于检测皮带跑偏、堆煤、撕裂、温度报警、打滑、烟雾、急停、张力等故障[3-4]。

皮带保护系统组成


图1 系统组成图

3.特点

1)减人提效:煤矿大部分的胶带输送机都是配置操作工开启,每条皮带1人,按照3班计算,每条皮带就需要4个人。煤矿的胶带输送机少则十几条,多则几十条。光皮带队就需要上百人。配置了胶带机集中控制及保护系统后,只需要配置5-10人的维修队伍,2个人的集控就可以实现所有皮带的集中控制。可进行连锁启动、停止;也可任意选择单条皮带进行启停。大量的节约了人力、物力,节省煤矿支出。

2)减少了事故率的发生。工人多就造成了事故率高,减少了现场工人,最大限度了减少了伤亡事故的发生。为建设本质安全型矿井卖出了坚实的一步。打造人、机和谐,实现长治久安。

3)提高了装备水平,增加了技术含量。煤矿的自动化技术水平普遍较低,PLC在煤矿的广泛应用,提高了煤矿装备的自动化水平。为煤矿信息化、自动化、数字化奠定了良好的基础。

4.功能

1)集控连锁控制

在此模式下,系统检测到需要开启皮带时,首先检测各条皮带无保护报警时,由主站按照逆煤流开车、顺煤流停车的原则,依次控制各从站启动、停止[5]。

皮带保护系统软件

图 上位机软件界面

2)单条运行控制

此模式下,无工作闭锁关系,检测到启动、停止皮带的指令后,可直接启动或停止皮带的运行。

3)单条点动控制

此模式下,检测到启动指令后,皮带机启动皮带运行几秒钟,接着停止。主要用于皮带机的检修工作。运行时间可在触摸屏上进行设置。

4)保护功能

保护功能按照煤炭规程要求进行开发,满足MT872的要求。

A. 打滑保护

当输送带速度在10s内均在额定带速的50%~70%范围内,或输送机带速小于等于50%额定带速时,或输送机带速大于等于110%额定带速时,报警并停止输送机的运行。对输送机正常启动和停止造成的速度变化,不应有动作。

B.  堆煤保护

在2s内连续检测到煤位超过预定位置,报警并停止输送机运行,其保护动作的作用力不大于9.8N。

C.  跑偏保护

当运行的输送带超出托辊端部边缘200mm时,发生跑偏时,报警并停止输送机运行,其保护动作所需作用于跑偏传感器中点正向力为20~100N。

D. 超温洒水保护特性

在测温点处温度超过设定值时,装置2s内应报警,同时应能启动洒水电磁阀,喷水降温。

E.  烟雾保护

连续2s内烟雾浓度达到1.5时,报警并停止输送机运行。

F. 撕裂保护

运行中的输送机纵向撕裂时,报警并停止输送机的运行。

G. 双向急停开关保护

双向急停开关在任何一边施加40~200N的力时,双向急停开关能停止输送机的运行,并自锁。

H.  张力传感器检测

张力传感器用于测量煤矿井下胶带输送机胶带张紧力的变化。

6)报警功能

当皮带运行中出现任何保护传感器动作时,进行报警。并将报警信号传输给主站。主站判断工作模式,若在集控连锁模式,则按照顺煤流停车的原则,依次控制从站进行停车;若工作在单条运行模式,则直接停止皮带机的运行。

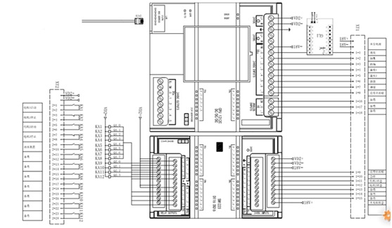
5.防爆PLC控制箱

防爆控制箱使用西门子S7-1212作为控制的核心,按照GB3836的要求进行必须的输入输出隔离后与外部传感器、执行器进行连接,其通讯接口接入控制箱的环网交换机。

输入部分主要为皮带运行状态、皮带运行的各种保护传感器;输出部分为皮带的启动停止信号、超温洒水的电磁阀等。

 

永盛游戏厅

图3  防爆PLC控制箱的主要内部原理图

防爆控制箱

4 防爆PLC控制箱样机

6.结束语

西门子推出S7-1200系列PLC后,因其CPU模块直接具备网络接口,顺应了工业自动化对信息化、数字化的需求。并在煤矿的小型自动化系统中迅速的占领了市场。

皮带机集控及保护系统还没有在煤矿得到广泛的普及,推广集控系统具备深远的意义。真正实现高产、高效,打造本质安全型矿井。


矿用防爆摄像机,防爆摄像仪,隔爆兼本安型小功率电机控制箱PLC控制箱,矿用流量传感器,矿用录像机,煤矿防爆显示器,本安型压力传感器井下视频监控系统防爆光端机,电动闸阀电动球阀防爆交换机防爆计算机,井下自动排水系统泵房无人值守系统皮带保护及集控系统,防爆电脑防爆计算机,防爆plc控制箱矿用水位传感器,矿用液位传感器 矿用小型plc箱超声波流量计流量传感器矿用电动球阀闸阀
执照 备案: 鲁ICP备11031547号-2 公安机关备案号:37010402000152